Riprogettazione e rimodulazione di un ampio Attico a Falconara

La rimodulazione in chiave moderna e anticonvenzionale di un appartamento degli anni sessanta è divenuto lo strumento per rispondere alle esigenze funzionali della committenza.
Posta all’ultimo piano di un edificio fronte mare con buona esposizione e dotato di un ampio terrazzo, questa residenza è stata sottoposta ad un intervento di ristrutturazione che ne ha radicalmente rinnovato l’immagine e sfruttato al meglio le ottime potenzialità.
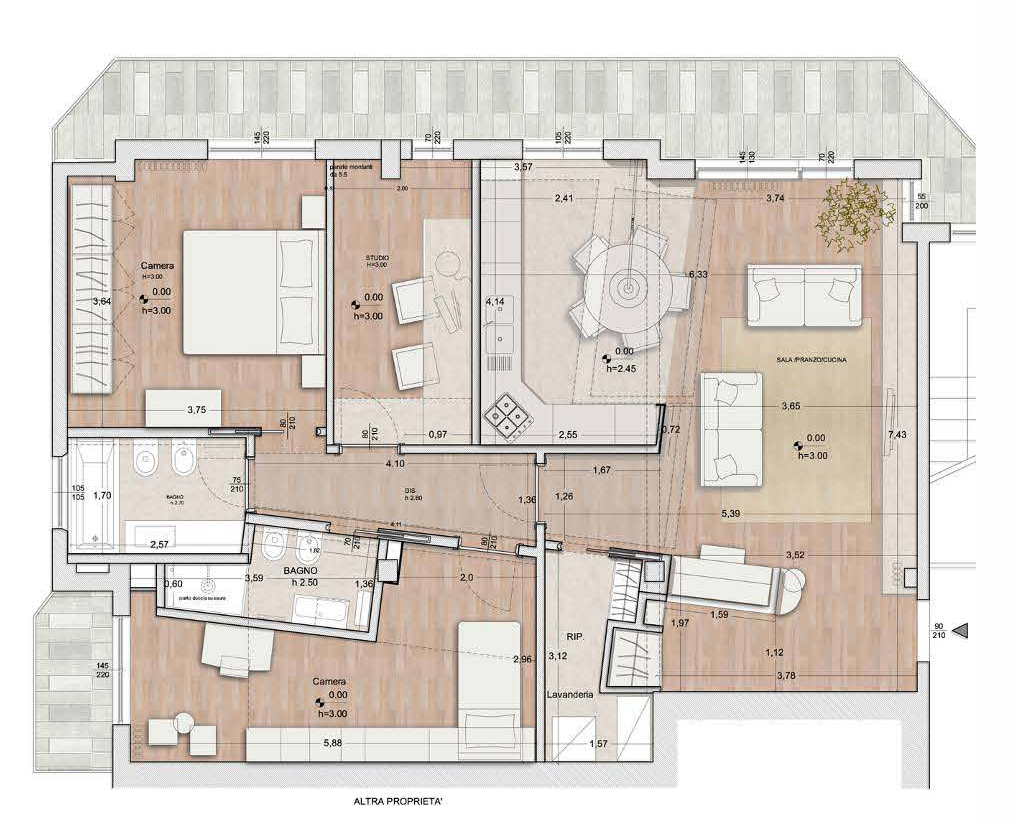
Lo spazio di connessione tra la zona living di accoglienza e l’area più privata della casa costituisce una cerniera architettonica posta all’intersezione dei due assi generatori dell’impianto planimetrico, ruotati di dieci gradi rispetto alla scatola parallelepipeda.

L’attenzione del fruitore che varca la soglia è immediatamente attratta da questo fulcro compositivo del dinamico sistema planivolumetrico progettato.
La composizione volumetrica dei soffitti è costituita da semplici elementi geometrici costruttivi – piani e volumi in total white incastrati al sistema della struttura esistente che, per la loro posizione e ruolo nell’organizzazione generale, sono stati studiati con particolare cura del dettaglio e risultano esaltati e enfatizzati da una attenta calibrazione della luce artificiale.



Il volume che ingloba il pianoforte, pezzo di grande valore affettivo per la committente, equilibra a terra i volumi del soffitto e permette il riordino dei percorsi distributivi tra le varie parti della casa. La percezione prospettica di tali elementi, allineati agli assi ruotati, è moltiplicata da un taglio di specchi posto ad altezza uomo sulla parete perimetrale di ingresso impreziosita da una elegante boiserie.


zona living
Alla zona living e pranzo il progetto ha voluto conferire una continuità spaziale che, attraverso l’ampia finestratura, si estende all’area esterna del terrazzo vista mare, rivolto verso il golfo della città di Ancona, dove sono previsti lavori di impermeabilizzazione del fondo e realizzazione della pavimentazione in conci di pietra. Lo spazio di distribuzione della zona notte, allineato secondo l’asse longitudinale inclinato, ha permesso di ricavare due camere e uno studio e negli spazi di risulta sono stati collocati i due bagni,
entrambi immediatamente adiacenti l’unica colonna di scarico, la zona lavanderia e il guardaroba accessibile dalla zona giorno. Il parquet in Tech, che bene si sposa con alcuni pezzi d’arredo di proprietà, impreziosisce gli interni e si pone a contrasto con il colore bianco RAL9016 dell’involucro.
Il risultato è un appartamento estremamente funzionale, dinamico e ricco di occasioni emozionali.
